19950190585
282644463@qq.com
搜索
城市
首页
关于我们
星空帐篷
新闻中心
成功案例
联系我们
星空帐篷
网站首页
>
星空帐篷
1
/
4
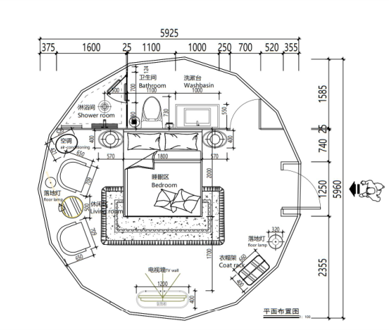
光伏玻璃星空房(旷野之星)
框架:全实木松木框架
墙体:光伏玻璃+low-E玻璃+中空玻璃+松木板
规格(直径):6m
套内面积:28㎡
投影面积:30㎡
抗风等级:10级以下
产品咨询
产品介绍
上一篇:
双体星空房(双子星)
下一篇:
布球帐篷(皓月星海)
产品咨询
提交留言